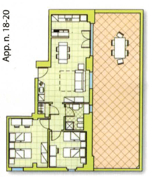
Tutto lo spazio per 4 persone
Scegli tra uno dei 2 trilocali “Michelangelo” (51 mq) con zona giorno attrezzata di cucina con ampio terrazzo panoramico, bagno e 2 camere da letto doppie, oppure uno dei 7 trilocali “Tiziano” (63 mq) con zona giorno con balconcino, bagno e 2 camere doppie.
Contattaci per verificare le disponibilità attuali.







